☆帰り道をハッピーに☆中央市井之口 2号新築建売住宅 長期優良認定+耐震等級3取得+住宅性能評価付
物件種目 新築売戸建住宅
建物名 中央市井之口 2号棟 長期優良住宅+耐震等級3取得 新築住宅(一般向非公開) 号棟番号:2号棟(一般向非公開)
所在地 中央市井之口662番1
その他所在地
交通
(最寄駅/バス停) 身延線 常永 徒歩4分
利用駅1 身延線 小井川 徒歩24分
利用駅2
その他交通手段 自動車利用
価格 3,490万円 地代
権利金 保証金
その他一時金
ランニングコスト
瑕疵保証
瑕疵保険
建物状況調査
設備保証
長期優良住宅
認定通知書 あり
フラット35
適合証明書
フラット35S
適合証明書 あり
耐震基準
適合証明書
法適合状況
調査報告書
建築士等の
建物検査報告書
建物面積 111.58㎡ 土地面積 公簿 201.91㎡
(61.07坪) 私道負担面積 なし
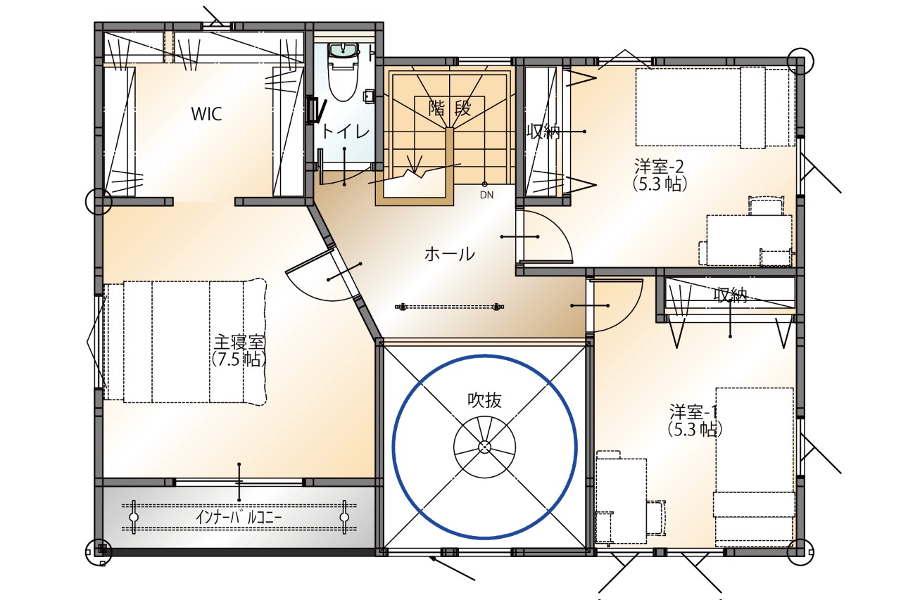
間取り 4LDK 建物構造 木造 建物規模 2階建
間取り内訳 和 5.2 洋 5.2・5.5・7 LDK 17.7 主要採光面 南向き
土地権利 所有権 借地期間 バルコニー 10.77㎡
築年月 2026年01月 新築
エネルギー
消費性能 ★★★★★(削減率40%達成)
断熱性能 5段階/7段階中 目安光熱費
リフォーム履歴
リノベーション履歴
都市計画 調整区域 用途地域 無指定 建ぺい率 60%
地目 宅地 地勢 平坦 容積率 200%
駐車場 パーキングマップにて付近にある駐車場を検索 現況 建築中 引渡し 相談
建築確認番号 第R’07SHC116183号 特記
年間予定賃料収入 利回り 国土法
施工会社
接道状況 西6.7m 公道 南6.0m 公道
分譲住宅 販売戸数 1戸
工事完了予定年月 2023年01月 セットバック
温泉
特徴 2面採光 バリアフリー オール電化 24時間換気システム 外壁サイディング 整形地 閑静な住宅街 設計住宅性能評価書 建設住宅性能評価書 新築時・増改築時の設計図書
設備 バス1坪以上 追焚機能 浴室暖房 浴室乾燥機 トイレ2ヶ所 温水洗浄便座 シャワー付洗面化粧台 IHクッキングヒーター カウンターキッチン システムキッチン 食器洗浄乾燥機 浄水器 全居室収納 クローゼット 床下収納 照明器具 人感センサー付照明 ダウンライト 室内物干し 省エネ給湯器 都市ガス 複層ガラス 全居室フローリング クッションフロア 電気 上水道 下水道 側溝 ダブルロックドア モニタ付インターホン シャッター雨戸 火災警報器(報知機) ワイドバルコニー 庭 駐車場3台分以上
備考 4LDK+収納豊富外構付き(車4台スペース)住宅性能表示W取得の安心住宅!■長期優良住宅認定通知書
長期優良住宅認定通知書あり
■フラット35S適合証明書
フラット35S適合証明書あり
間取りは家事動線を考慮した回遊型設計!!洗面室にも収納付きで収納上手!
キッチンスペースはアクセント映えのポップアップ天井採用ですので高級感演出!オール電化仕様ですのでIHクッキングヒーターに食洗器搭載+エコキュートとエコな生活ご提案!お風呂には浴室乾燥暖房と便利機能満載!トイレはシュレット機能付きに壁面収納ですっきり収納!
寝室には収納付きですので収納たっぷりと!「住宅性能評価」を「設計」と「建設」で全棟取得!設計性能評価と、現場での厳しい社内チェックに加え、国が認めた第三者機関の評価員が4回の検査を1棟1棟厳密にチェック。4回の現場検査をクリアした建設性能評価を取得している住宅だからこそ、安心へのこだわりが違います!こだわりの設備仕様(IH+食洗器+LED照明+浴室換気乾燥暖房付)耐震等級3取得に長期優良住宅取得!網戸オプション設置可能(11万円税込み)
周辺環境1 [ショッピング施設] 無印良品イオンモール甲府昭和店まで1,325m
周辺環境2 [コンビニ] セブンイレブン玉穂若宮北店まで695m
周辺環境3 [中学校] 中央市立玉穂中学校まで2,320m
周辺環境4 [小学校] 中央市立三村小学校まで1,988m
周辺環境5 [ショッピング施設] イッツモア玉穂店まで1,210m
周辺環境6 [郵便局] イオンモール甲府昭和内郵便局まで1,308m
周辺環境7 [銀行] 山梨信用金庫昭和支店まで553m
周辺環境8 [銀行] JA山梨みらい昭和支店まで884m
|
|---|
|
