☆明日が待ち遠しい家☆ 新築住宅 甲斐市 富竹新田 (竜王駅) 2階建 3LDK 

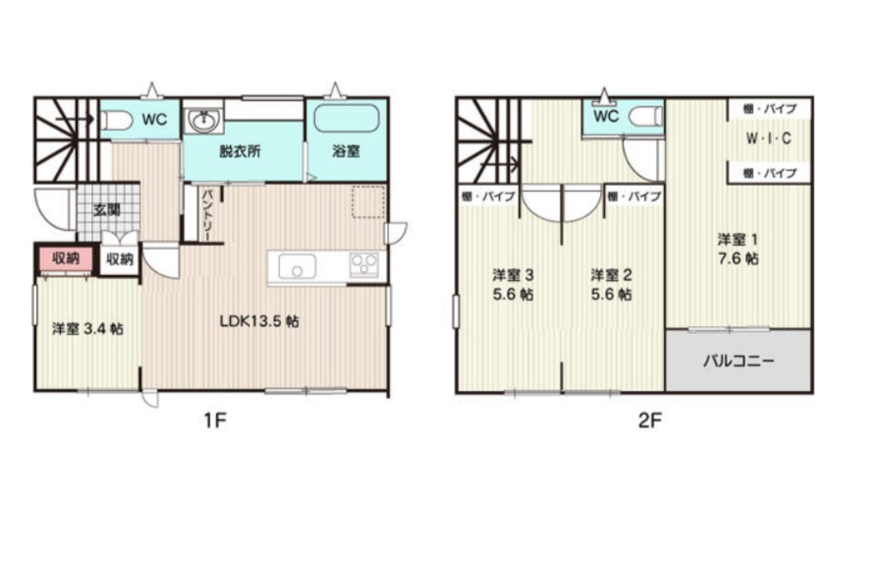
価格 2,980万円 間取り 3LDK
交通 JR中央線(東京~塩尻) / 竜王駅 徒歩28分
所在地 山梨県甲斐市富竹新田
築年月 2025年11月


建物面積 86.52㎡ 土地面積 194.11㎡

  • 価格2,980万円(税込)
  • 所在地山梨県甲斐市富竹新田1号棟
  • 間取り3LDK
  • 築年数2025年
  • 建物面積87m2
  • 土地面積194m2
建物外観 完成イメージ 建物外観 完成イメージ
平面図面 平面図面
建物完成イメージ 建物完成イメージ
トイレ トイレ

失敗しないシタク