中古住宅☆甲府市青沼2丁目

おすすめ

車4台駐車可能な駐車スペースがあります
事務所などに使えそうな離れがあります
東小学校まで徒歩約8分

  • 価格1,050万円(税込)
  • 所在地山梨県甲府市青沼2丁目13-8
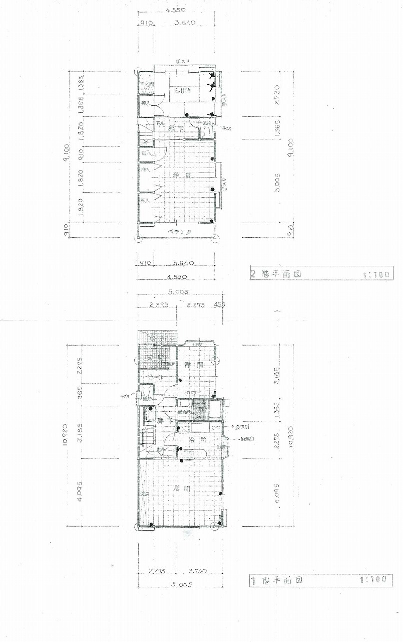
  • 間取り2SLDK
  • 築年数1985年
  • 建物面積95m2
  • 土地面積214m2
建物東側より撮影 建物東側より撮影
北側約4mの道路に接道しています 北側約4mの道路に接道しています
2SLDKの間取りです 2SLDKの間取りです
車4台分以上の駐車スペース 車4台分以上の駐車スペース
プレハブの離れあり プレハブの離れあり

ランド・メーション

失敗しないシタク